Dự án Nam Hoà Xuân – tên tiếng anh là Han River Village, tọa lạc ngay tại phường Hòa Quý, Quận Ngũ Hành Sơn, nằm trong khu trung tâm của chiến lược phát triển thành phố Đà Nẵng.
1. Đà nẵng – điểm sáng đầu tư bất động sản tại Việt Nam
![]() |
| Đà Nẵng điểm đến du lịch nổi tiếng quốc tế |
![]() |
| Chỉ số cạnh tranh Đà Nẵng dẫn đầu qua nhiều năm |
|
|
| Dân số Đà Nẵng tăng nhanh qua các năm |
![]() |
| Khách du lịch đến đà nẵng tăng nhanh |
![]() |
| Nguồn Quy hoạch tổng thể phát triển kinh tế - xã hội Đà Nẵng đến 2020 |
2. Vị trí đắc địa, 4 mặt giáp sông tại dự án Nam Hoà Xuân
Dự án Nam Hoà Xuân – tên tiếng anh là Han River Village, tọa lạc ngay tại phường Hòa Quý, Quận Ngũ Hành Sơn, nằm trong khu trung tâm của chiến lược phát triển thành phố Đà Nẵng.
Dự án Nam Hoà Xuân – tên tiếng anh là Han River Village, tọa lạc ngay tại phường Hòa Quý, Quận Ngũ Hành Sơn, nằm trong khu trung tâm của chiến lược phát triển thành phố Đà Nẵng.
Cách sân bay 4km, trong phạm vi 1km dự án dễ dàng tiếp cận với các khu du lịch, vui chơi, giải trí hấp dẫn như khu Liên Hợp Thể Dục Thể Thao Quốc Gia Hoà Xuân, làng Đại học Đà Nẵng, khu du lịch – công viên văn hoá Ngũ Hành Sơn, Công viên Châu Á Asia Park…
|
|
| Vị trí đắc địa dự án Nam Hoà Xuân Đà Nẵng |
Với lợi thế vị trí 4 mặt giáp sông, cách biển 1 km, khu đô thị sinh thái Nam Hoà Xuân mang đến cho cư dân cuộc sống như nghỉ dưỡng ngay giữa lòng thành phố đáng sống nhất Việt Nam.
![]() |
| Phối cảnh 4 mặt giáp sông tại dự án Nam Hoà Xuân |
3. Chủ đầu tư SunGroup uy tín
Han River Village là sản phẩm bất động sản của Tập đoàn Sun Group - nhà đầu tư hàng đầu tại Đà Nẵng với các dự án đã được quốc tế vinh danh như InterContinental Danang Sun Peninsula Resort hai năm liền được bình chọn “Khu nghỉ dưỡng sang trọng nhất thế giới”, dự án Premier Village Danang Resort được ví như “Tuyệt tác bên bãi biển đẹp nhất hành tinh”, Novotel Danang và hàng loạt các dự án khác như khu du lịch Bà Nà Hills, công viên văn hóa giải trí Asia Park…
![]() |
| InterContinental Danang - Khu nghỉ dưỡng sang trọng nhất thế giới |
Bằng kinh nghiệm và uy tín của mình, Sun Group sẽ đảm bảo sự thành công cho dự án và giá trị bất động sản gia tăng theo thời gian.
4. Đơn vị quy hoạch nổi tiếng quốc tế, phong cách thiết kế đô thị sinh thái nghĩ dưỡng
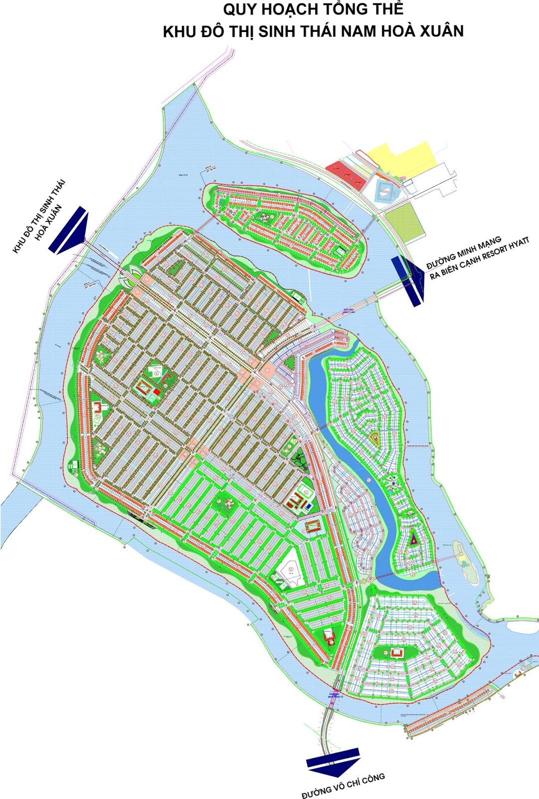
Không chỉ sở hữu vị trí đắc địa, dự án còn được quy hoạch đạt chuẩn quốc tế bới Tập đoàn danh tiếng thế giới SaLa Design Group (Anh) thực hiện.
![]() |
| Dự án được quy hoạch bởi SaLa Design Group (Anh) |
Dự án có tổng diện tích 509 ha, mật độ xây dựng chỉ 22%, còn lại là mảng xanh, mặt nước, giao thông, công trình công cộng và các tiện ích ven sông đồng bộ.
Phần xây dựng gồm các phân khu chính: biệt thự cao cấp, công viên văn hóa, khu vui chơi giải trí, trung tâm thương mại, trường học, bệnh viện. Theo các chuyên gia kiến trúc, đây là tỷ lệ vàng trong quy hoạch, thường chỉ thấy ở các dự án bất động sản nghỉ dưỡng đẳng cấp.
5. Những điểm nhấn tạo nên sự khác biệt tại dự án Nam Hoà Xuân:
- Toàn bộ dự án được thiết kế hệ thống điện ngầm.
- Toàn bộ cột đèn đường là cột thép sang trọng, đẳng cấp.
- Khoảng cách đối lưng giữa 2 nhà là 2,5m tạo nên sự khác biệt mà không dự án nào có được.
- Ôm trọn xung quanh là 5 ngọn núi ngũ hành sơn - 4 mặt giáp sông tạo nên phong cảnh sơn thuỷ hữu tình.
![]() |
| "Toạ sơn vọng thuỷ" - hài hoà với thiên nhiên tại Nam Hoà Xuân |
6. Khu đô thị phức hợp tiện ích đầy đủ, thành phố sinh thái thu nhỏ
|
|
| Tiện ích bên ngoài tại khu đô thị sinh thái Nam Hoà Xuân |
Tiện ích bên trong khu đô thị sinh thái Nam Hoà Xuân:
- Hệ thống trường mẫu giáo
- Hệ thống trường cấp 1, cấp 2 và cấp 3 quốc tế
- Cách trường quốc tế Singapore (SIS), Trường quốc tế Mỹ Thái Bình Dương (APU) trong 2 phút đi xe
- Bệnh viện quốc tế
- Cách trường quốc tế Singapore (SIS), Trường quốc tế Mỹ Thái Bình Dương (APU) trong 2 phút đi xe
- Bệnh viện quốc tế
- Công viên cây xanh
- Công trình tôn giáo
- Cách trung tâm hành chính quận trong 1 phút đi xe
- Khu vui chơi giải trí – sân thể dục thể thao ngoài trời
- Trung tâm thương mại – văn phòng
- Bến du thuyền
7. Giá hấp dẫn so với thị trường, tiến độ thanh toán linh hoạt
Đất nhà phố diện tích từ 100m2 đến 150m2, giá từ 800 triệu/nền
Tiến độ thanh toán:
- Đợt 1: Đặt cọc 150 triệu ngay khi ký hợp đồng
- Đợt 2: Thanh toán 200 triệu tiếp theo trong vòng 30 ngày kể từ ngày ký hợp đồng
- Đợt 3: Thanh toán hết số tiền còn lại trong vòng 60 ngày kể từ ngày ký hợp đồng.
- Đợt 1: Đặt cọc 150 triệu ngay khi ký hợp đồng
- Đợt 2: Thanh toán 200 triệu tiếp theo trong vòng 30 ngày kể từ ngày ký hợp đồng
- Đợt 3: Thanh toán hết số tiền còn lại trong vòng 60 ngày kể từ ngày ký hợp đồng.
Ngân hàng hỗ trợ cho vay 60% giá trị hợp đồng, thời hạn trả góp lên đến 25 năm.
Để biết thêm thông tin chi tiết, liên hệ HotLine: 0932 646 515
8. Pháp lý rõ ràng, tiến độ xây dựng nhanh
9. Không gian an cư – đầu tư – nghĩ dưỡng hàng đầu tại đà nẵng, tiềm năng sinh lợi lớn
Khu đô thị sinh thái Nam Hoà Xuân không chỉ được xây dựng theo tiêu chuẩn quốc tế, quy hoạch một cách tổng thể, đồng bộ và hiện đại, mà còn bảo tồn được vẻ đẹp vốn có của thiên nhiên nhằm mang lại một cuộc sống như nghỉ dưỡng cho mọi cư dân. Tự hào là khu đô đô thị sinh thái, công viên văn hóa và quần thể du lịch sông nước đầu tiên tại thành phố Sông Hàn
Trong mục tiêu phát triển của mình, Đà Nẵng sẽ là thành phố cấp quốc gia, hiện đại là đô thị trung tâm thúc đẩy phát triển kinh tế - xã hội vùng miền Trung và Tây Nguyên. Tương lai, Đà Nẵng sẽ phát triển trở thành thành phố đặc biệt cấp quốc gia, hướng tới đô thị cấp quốc tế, phát triển bền vững.
Trong bối cảnh ấy, lựa chọn và sở hữu nhà ở giữa không gian resort đẳng cấp tại đây là hướng đầu tư mang lại giá trị lợi nhuận cao trong tương lai, đặt biệt là khi quỹ đất nền đang dần trở nên khan hiếm tại Đà Nẵng.
Trong mục tiêu phát triển của mình, Đà Nẵng sẽ là thành phố cấp quốc gia, hiện đại là đô thị trung tâm thúc đẩy phát triển kinh tế - xã hội vùng miền Trung và Tây Nguyên. Tương lai, Đà Nẵng sẽ phát triển trở thành thành phố đặc biệt cấp quốc gia, hướng tới đô thị cấp quốc tế, phát triển bền vững.
Trong bối cảnh ấy, lựa chọn và sở hữu nhà ở giữa không gian resort đẳng cấp tại đây là hướng đầu tư mang lại giá trị lợi nhuận cao trong tương lai, đặt biệt là khi quỹ đất nền đang dần trở nên khan hiếm tại Đà Nẵng.
10. Chính sách bán hàng hấp dẫn trong đợt mở bán hiện tại
Hiện chủ đầu tư đang áp dụng chính sách chiết khấu 8% dành cho khách hàng mua và thanh toán hết trong vòng 15 ngày
Giá từ 800 triệu/nền.
Giá từ 800 triệu/nền.
“Cơ hội vàng để đầu tư – an cư – nghĩ dưỡng tại thành phố đáng sống nhất Việt Nam”
Để biết thêm thông tin chi tiết, tham quan thực tế dự án và nhận chính sách bán hàng tốt nhất, quý khách liên hệ Hotline: 0932 646 515
Theo http://www.sungroupdanang.com
Các bản tin khác
- Ai cũng có quyền biết thông tin quy hoạch
- Từ 10-10, đồng loạt giao đất tái định cư cho hộ giải tỏa ở Ngũ Hành Sơn
- Sớm tháo gỡ vướng mắc gói 30 ngàn tỷ
- Không để kéo dài tình trạng dân chờ đất, đất chờ dân
- Giải bài toán nợ đất tái định cư
- Khởi công xây dựng Khu phức hợp FPT
- Bong bóng bất động sản và bài học từ Nhật Bản
- Hoàn thành bố trí tái định cư ở quận Liên Chiểu trước 30-9
- Hoàn thành dứt điểm trả nợ đất TĐC thực tế đối với hộ đã bàn giao mặt bằng từ năm 2011 về trước
- Ngưng giao dịch nhà, đất bằng “giấy trắng”
- Đà Nẵng tiếp tục đề xuất bán thí điểm chung cư đầu tư từ vốn ngân sách
- Đà Nẵng đề nghị thành lập Sở Quy hoạch - Kiến trúc và hai quận mới
- Thành phố Đà Nẵng tổ chức thành công Hội nghị tổng kết công tác chứng thực
- Bộ Tư pháp đứng thứ 2 trong Bảng xếp hạng mức độ Ứng dụng công nghệ thông tin của các Bộ, cơ quan ngang Bộ năm 2013
- Triển khai thi hành Luật Đất đai trên địa bàn thành phố
- Tiếp tục thực hiện thí điểm Văn phòng đăng ký quyền sử dụng đất một cấp
- Ham nhà giá rẻ coi chừng ôm hận
- Sắp mở bán biệt thự, đất nền dự án Green City Da Nang Beach
- Thủ tướng chỉ thị kiểm kê đất đai toàn quốc
- Mua nhà cho thuê: Lời đơn lãi kép



























